Kaskády tepelných čerpadel snižují náklady na teplou vodu
Master Therm to dokládá příklady z praxe
Přehrát audio verzi
Kaskády tepelných čerpadel snižují náklady na teplou vodu
00:00
00:00
1x
- 0.25x
- 0.5x
- 0.75x
- 1x
- 1.25x
- 1.5x
- 2x
Kaskáda tepelných čerpadel vyrábí úsporně teplou vodu mimo topnou sezónu. Zvyšuje podíl obnovitelných zdrojů a pomáhá splnit požadavky na vysoce účinnou výrobu tepla. V kontejnerovém řešení je instalována během jednotek dnů.
Požadavek legislativy vyžadující zvýšit podíl obnovitelných zdrojů energie při výrobě tepla k vytápění a přípravě teplé vody s využitím zemního plynu se obvykle řeší přechodem na tepelné čerpadlo nebo hybridním zdrojem. V případě hybridního zdroje se obvykle uvažuje o tom, že teplo vyrobené spalováním plynu bude v průběhu dne doplňováno teplem vyrobeným tepelným čerpadlem. V závislosti na okamžitých cenách plynu a elektřiny. Tyto úvahy mají opodstatnění nejen pro malé zdroje tepla, ale i pro střední a velké zdroje, na které jsou napojeny soustavy zásobování tepelnou energií SZTE, nebo-li CZT. V těchto větších soustavách bývá poměrně velký rozdíl mezi potřebným výkonem v létě, jen pro přípravu teplé vody a v zimě i pro vytápění. Takto velký rozdíl vyžaduje vysoký stupeň regulace výkonu plynového zdroje, pokud má pracovat s vysokou účinností. A obvykle, v mnoha reálných případech, tak vysoká schopnost regulace není k dispozici.
Do popsaného nevýhodného stavu se může zdroj tepla pro CZT dostat i snižováním odběru tepla následkem zateplování objektů a úsporných opatření na straně spotřeby teplé vody. Ve zdroji bývají i moderní plynové kotle, které mají před sebou ještě roky spolehlivého provozu, ale nejsou schopné reagovat na změněné podmínky. Byla by škoda je demontovat.
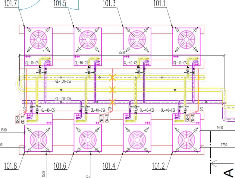
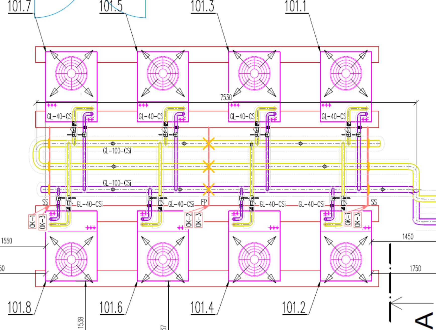
Provozně a tedy i nákladově nevyhovující stav může vyřešit kaskáda tepelných čerpadel, jak ukazuje zkušenost Master Therm získaná v praxi. Jedná se například o aplikaci 8 tepelných čerpadel vzduch-voda BoxAir 60 ZHX pro ČEZ Energo v Ivančicích. Účelem instalace tepelných čerpadel byla příprava teplé vody výhradně mimo topnou sezónu. Při tom se využívá skutečnost, že venkovní vzduch, ze kterého tepelná čerpadla odebírají teplo, má mimo topnou sezónu vyšší teplotu, tepelná čerpadla pracují s vysokým topným faktorem a kaskáda má díky složení z 8 tepelných čerpadel velmi vysoký stupeň regulace výkonu. Od souhrnného jmenovitého výkonu 251 kW při teplotě venkovního vzduchu 20 °C a výstupní teplotě pro ohřev vody 65 °C až k nejnižšímu možnému na úrovni cca 30 kW. Specialitou instalovaných tepelných čerpadel BoxAir 60 ZHX vyvinutých výrobcem Master Therm pro tuto konkrétní aplikaci je unikátně vysoká výstupní teplota až 75 °C.

Obr. Tepelná čerpadla v kaskádě jsou řazena paralelně a jejich provoz je řízen tak, aby všechna měla přibližně stejný počet provozních hodin.

Obr. Tepelná čerpadla jsou instalována ve dvou řadách. Venkovní vzduch je nasáván z čela a pro průchodu tepelným čerpadlem vyfukován směrem vzhůru.
Kaskáda tepelných čerpadel s chladivem R290 v kontejneru
Přechod tepelných čerpadel na přírodní chladivo R290 je spojen s nutností zohlednit jeho hořlavost. To není problém při malých výkonech jednotek kW. Větší výkony vyžadují větší množství chladiva a tím jsou spojeny vyšší nároky na technické řešení místnosti s tepelnými čerpadly. Jde to i jinak, jak ukazuje příklad střední školy Laureate Academy v anglickém městě Hemel Hempstead.

Obr. Kontejner s tepelnými čerpadly a všemi potřebnými prvky má rozměry vyhovující nákladní silniční přepravě
V rámci projektu Ministerstva školství Velké Británie zaměřeného na modernizaci školních budov realizovala společnost Hex Energy ve spolupráci se společností Thermal Earth, distributorem tepelných čerpadel Master Therm, unikátní kontejnerové řešení. Kontejner obsahující komplexní řešení zdroje tepla se sedmi tepelnými čerpadly s chladivem R290 v kaskádě o celkovém výkonu 245 kW (B0W35) je umístěn mimo budovu školy. Strojovna uvnitř budovy by musela obsahovat vysoce výkonný bezpečnostní systém odvětrání chladiva pro případ jeho úniku, což v kontejnerovém řešení mimo budovu není nutné.
Zkušenosti z projektu potvrzují, že takové řešení zásadně snižuje objem prací na stavbě, vylučuje riziko chyb v práci instalatérů a je vhodným řešením nejen pro rychlou výstavbu a modernizaci škol, ale i jiných objektů, pokud se vedle nich najde místo na kontejner.
Závěr
Základní podmínkou úsporného provozu kaskády tepelných čerpadel je využití systému řízení, který dokáže maximalizovat energetické zisky, které provozovaná tepelná čerpadla mají. To znamená, že řídicí systém musí být „naladěn“ na parametry instalovaných tepelných čerpadel. V popsaných případech byl využit nejen řídicí systém navržený výrobcem tepelných čerpadel, tedy firmou Master Therm, ale i tepelná čerpadla byla navržena na konkrétní provozní podmínky. Schopnost optimalizovat konstrukci tepelných čerpadel Master Therm tak, aby se maximálně sladily vlastnosti použitého chladiva, konstrukčních prvků se skutečnými provozními podmínkami, je mezi výrobci ojedinělá. Nejen v rámci využití pro vytápění, přípravu teplé vody, ale i pro zpětné získávání tepla.

Master Therm je český výrobce tepelných čerpadel vzduch-voda, země-voda, voda-voda s celosvětovou certifikací Heat Pump Keymark a registrací pro dotace NZÚ. Tepelná čerpadla s tradicí od roku 1994 pro rodinné i bytové domy a průmyslové objekty všech ...

